Офис в аренду - Объект №7

Октябрьская ул.

Объект № 7

Офис 180 000 ₽

Королёв, Московская область, Октябрьская ул.

Матвей

8 (985) 016 55-47

Скачать PDF

При звонке назовите Объект № 7, и мы быстрее найдем необходимую информацию!

Используйте удобный мессенджер и задайте вопрос

Характеристики объекта

  • Кол. ком.: 1
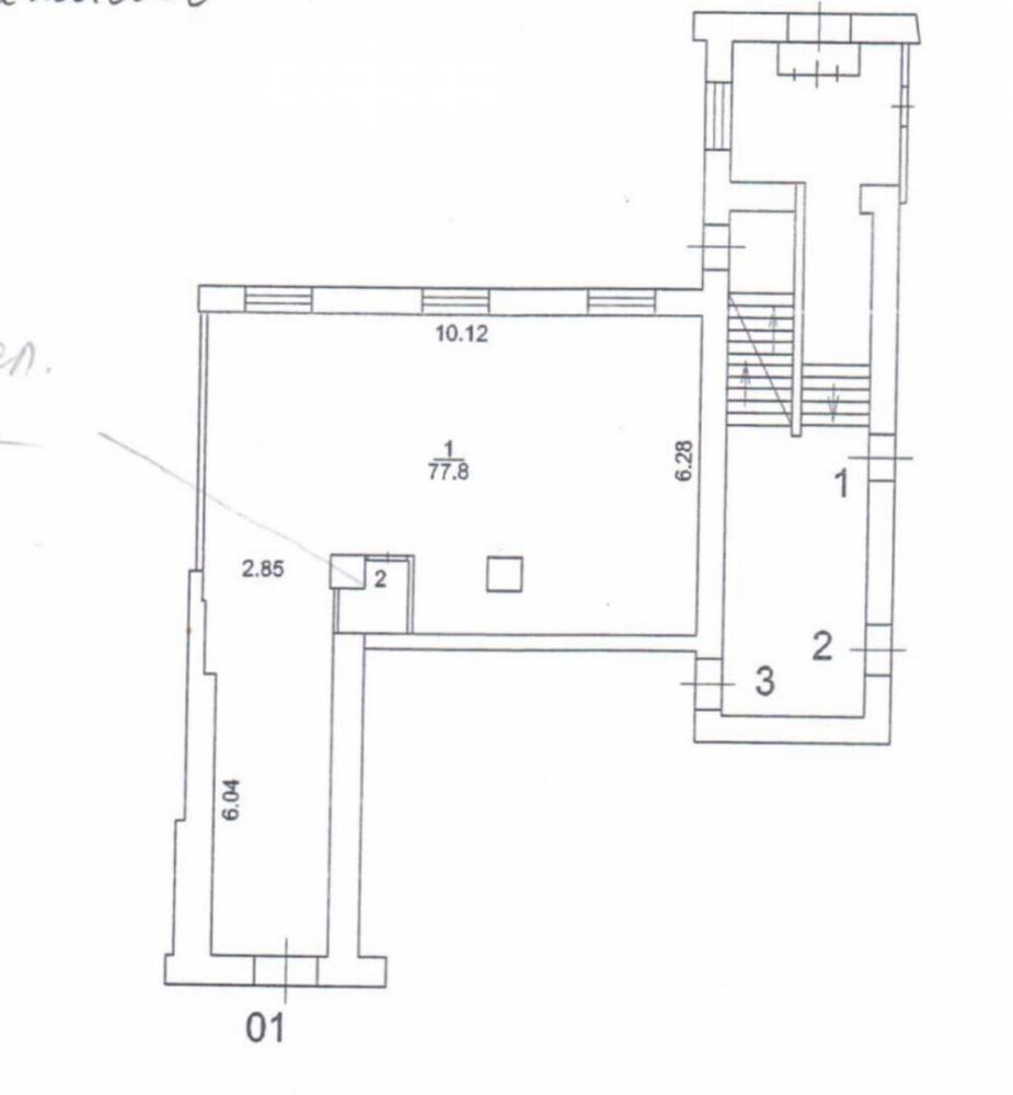
  • Площадь: 77,80/0/0
  • Этажность: 1/5
  • Ремонт: Косметический

Описание

Сдается помещение в жилом доме площадью 77.8 кв. свободного назначения со своим отдельным входом. Хорошее расположение в жилом массиве.Описание:Водоснабжения, электроснабжения, канализация, вентиляция, центральное отопление.Звоните! Записывайтесь на показ объекта прямо сейчас. Рады будем ответить на все ваши вопросы с 9:00 до 21:00.Сделки любой сложности. Безопасность сделки обеспечена стандартами работы Гильдии Риелторов Московской области. Агентство недвижимости Официальный отдел продаж новостроек Москвы и МО.Звоните! Записывайтесь на показ объекта прямо сейчас. Рады будем ответить на все ваши вопросы.
Выбрано 0

Вы можете оставить телефон или email для скорейшей связи