Офис в аренду - Объект №20

Объект № 20

Офис 165 000 ₽

Видное, Ленинский городской округ,

Матвей

8 (985) 016 55-47

Скачать PDF

При звонке назовите Объект № 20, и мы быстрее найдем необходимую информацию!

Используйте удобный мессенджер и задайте вопрос

Характеристики объекта

  • Кол. сан. уз.: 2
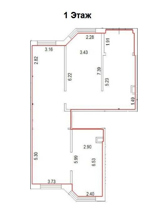
  • Площадь: 110/0/0
  • Этажность: 1/16
  • Ремонт: Без ремонта
  • Высота потолка: 3.00
  • Год постройки: 2018 (8)

Описание

Помещение сдается в аренду надежному арендатору на долгий срок.

В густонаселенном районе, с высоким автомобильным и пешеходным трафиком (стабильность бизнеса).

Рacположенo в 2км от мкад, на въезде в ЖК Зеленые Аллеи, на 1 этаже, в жилoм дoмe, по адресу: МО, г.Bиднoe, ул.Зеленые аллеи д.12.

Условия:
- Арендные каникулы: 3 мес (обсуждается).
- Стоимость в месяц: 1500р/м2
- Платеж за первый и последний месяц.
- Индексация: один раз в год.
- КУ и счетчик платит арендатор.
- Возможна привязка к товарообороту РТО.

Описание объекта:
- Панорамный вход с улицы, с окнами во двор.
- Общая площадь 110 кв.м.
- Высота потолков: 3 м.
- Мокрые точки: 1 шт.
- Парковка: бесплатная
- Гор/хол вода и отопление : центральное.
- Год постройки дома: 2018.
- Мощность электроснабжения: 30 КВт.
- Адекватная управляющая компания (ТСЖ) Низкие тарифы КУ.
- Сдается без отделки помещения.
- Помещение оборудовано охранной и пожарной сигнализацией, установлена система вентиляции и возможность установки кондиционирования.
- Ходит общественный транспорт.
- Прямой выезд до МКАД 2 км.
- Погрузочно-разгрузочная зона с улицы.

Другие арендаторы в этом доме:
Минимаркет, Мясо, Рыба, ГОРПИВО 24, ОЗОН, Яндекс маркет, Вайлдберис, Ателье, СДЭК, Детский центр, Детский сад, Живое пиво, Кофе и дисерты, Ветеринарная помощь, Зоо магазин, Мужские стрижки, Стоматология, Студия маникюра, Красное Белое, Салон Парикхмахерская.

Организована возможность показа помещения без выходных и праздничных дней.
Для оперативности получения информации и записи на показ помещения, звоните!
Выбрано 0

Вы можете оставить телефон или email для скорейшей связи